ID CP2315821

Spațiu administrativ și clădiri birouri + hale de vânzare în Giurgiu,

ID CP2315821

1,000,000 €

Spațiu industrial de vânzare
Periferie, Giurgiu
1,396 mp
1980

Spațiu administrativ și clădiri birouri + hale de vânzare în Giurgiu, Km 5

Dicos Property vă oferă spre vânzare un spațiu administrativ și hale situate în Giurgiu, la Km 5.

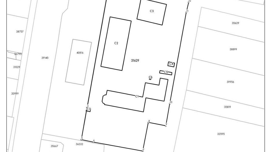
Proprietatea se întinde pe o suprafață de 9397 mp și cuprinde 7 clădiri funcționale, oferind potențial pentru diferite activități comerciale sau industriale.

Detalii proprietate:

Suprafață totală teren: 9397 mp

C1 - Spațiu administrativ / Clădire birouri: 698 mp - Sediu + atelier, parter și etaj, construcție din beton armat, cu acoperiș tip terasă

C2 - Hala 1: 776 mp - Depozit, construit din beton armat, cu acoperiș tip terasă

C3 - Hala 2: 393 mp - Depozit, construit din tablă și lemn, cu acoperiș din plăci

C4 - Spațiu depozitare: 17 mp - Depozit, construit din cărămidă

C5 - Rampă auto: 22 mp - Rampă auto, construcție din metal

C6: 4 mp - Depozit

C7: 9 mp - Cabina poartă, construcție din cărămidă

Facilități și avantaje:

Putere instalată: 63 kW

Posibilitate de extindere: Există o proprietate adiacentă de 4814 mp care poate fi achiziționată separat pentru extinderea activității

Acces rapid la drumurile principale

Spațiu amplu pentru depozitare sau producție

Preț: 1.000.000 EUR (Preț fix)

Această proprietate reprezintă o oportunitate pentru investitori sau firme care doresc să își extindă activitatea într-o zonă strategică. Cu o suprafață generoasă și posibilitatea de extindere, acest complex oferă flexibilitate și potențial pe termen lung.

Pentru mai multe informații și pentru programarea unei vizionări, nu ezitați să contactați agenția Dicos Property!

Contact:

Telefon: 0727 597 097

Email: dicosproperty@yahoo.com

Website: www.dicos.ro

Citește mai mult

  • Tip imobil
    Clădire birouri
  • Etaj
    1
  • Număr camere
    1
  • An construcție
    1980
  • Suprafață construită
    9,397 mp
  • Suprafață utilă
    1,396 mp
  • Suprafață totală birouri
    698 mp
  • Disponibilitate
    Imediat

Facilități

Iluminat stradal
Mijloace de transport în comun
Străzi asfaltate
Cristina Dima - Dicos Property
Cristina Dima
Manager

0727597097


Solicită chiar acum o vizionare
Telefon
Sună acum Solicită vizionare
Necesare:

Site-ul nu poate funcționa corect fără aceste cookie-uri. Vezi cookie-urile

Statistică:

Strângem statistici anonime despre voi, vizitatorii unici, pentru a vă îmbunătăți experiența dumneavoastră. Vezi cookie-urile

Marketing:

Pentru a ne promova mai eficient serviciile noastre, folosim cookies pentru a vă identifica și a vă oferi proprietăți și servicii personalizate. Vezi cookie-urile

Acest site folosește cookies, află detalii. Alege ce tipuri de cookies dorești să permitem: